信息來源:未知 編輯: 瀏覽次數: 1 次 發布時間:2014-07-02 11:01 【評論】
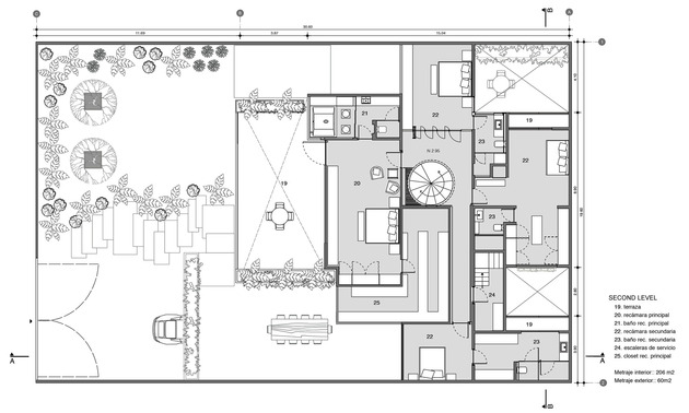
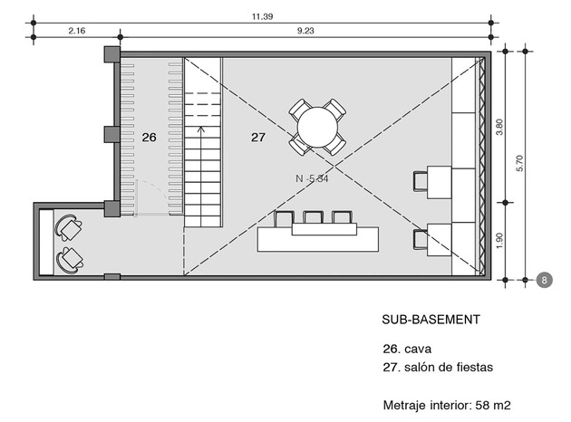
別墅裝修鋼筋混凝土玻璃結構別墅 Paola Calzada
本文地:http://www.wzldf.com/a/anli/zs/2014/0629/65.html
作品個性鮮明,風格突出合理的布局,簡潔的風格,精致的軟裝,是我...
作為一名從業時間將近14年的資深設計師,擅長不同的裝飾風格。
設計,不只是結合客戶的一些想法,最終給他創造出一種他自己...
電話:400-085-8552
電話:021-65317787
手機:13301886199
Q Q:205717956
Email:hongyu@hy-hw.net
郵編:20043
網站:www.hy-hw.com
微信:hyhw_net
hongyuhuanwei